→ fatb: 請教是用什麼網頁畫?02/10 16:14
我用永慶房仲網
※ 編輯: Wayjust1 (114.136.247.147 臺灣), 02/10/2026 16:16:14
→ fatb: 電器櫃 冰箱 鞋櫃 門檔(開門見X) 這四個問題要先想好就好02/10 16:15
→ fatb: 然後如果你喜歡下廚 那主流的開放式廚房油煙處理也要想好02/10 16:16
→ fatb: 其它應該沒有了 客廳光源不足但看你應該是不在意02/10 16:17
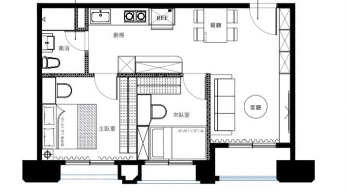
不好意思補充一下
客廳加2間臥室還有衛浴都有窗戶
※ 編輯: Wayjust1 (114.136.247.147 臺灣), 02/10/2026 16:19:34
推 kutkin: 兩面採光又2/2/1的話很充裕02/10 16:22
→ kutkin: 2衛會比較難畫02/10 16:22
→ gg553: 開門看到廚房我不行02/10 16:30
推 GoToCHT: 坪數就已經不大了不用考慮什麼風水啦02/10 16:38
→ fatb: 風水問題很好解決 擺個高一點的鞋櫃或裝個片簾 找裝潢的話02/10 16:40
→ fatb: 多這個項目也沒多多少錢...一個薄牆而已02/10 16:40
推 qsx889: 客廳暗廳 然後你還要擺鞋櫃 冰箱 如果還要做小裝潢擋基本02/10 16:43
→ qsx889: 空間會很小02/10 16:44
好的
推 dophin332: 收納多做一點02/10 16:49
推 Saynai: 在YT上看到跟你這格局一樣的裝潢02/10 16:55
推 unistrawman: 這格局不錯啊02/10 17:06
我也覺得不錯
只是長輩覺得不太好
→ fatb: 看了一下大門的位置不一樣 02/10 17:22

→ daipon: 起來沒什麼大問題。偶爾下廚,煮飯時注意味道重的食物要02/10 17:33
→ daipon: 關一下房門避免飄出去。給你參考02/10 17:33

→ daipon: 補張圖給你參考 02/10 17:33
※ 編輯: Wayjust1 (114.136.247.147 臺灣), 02/10/2026 17:36:05
推 kutkin: 開門見灶是因為以前衛生不好才這樣 02/10 17:38
推 puff620: 煮飯味道會整個家都是 02/10 17:43
推 kutkin: 其實做一個拉門就好了 02/10 17:46
推 aal: 有限資源下看起來不差 02/10 18:20
→ alpesor: 開門見灶 風水不行 02/10 19:06
→ bnn: 那是以前風灌到灶 火滅掉 耗柴火的風水 現代早就沒差了 02/10 19:38
→ arnbition: 拉門 味道 冷氣 02/10 20:23
推 cobrabaton: 窮人說沒差,有錢人有差。所以有錢人越來越有錢,窮人 02/10 20:36
→ cobrabaton: 就…. 02/10 20:36
推 cobrabaton: 可以問問那些沒差的目前住什麼樣的房,然後目前過的 02/10 20:40
→ cobrabaton: 怎樣,例如房間床跟腳都壓樑,腳還對落地窗,然後又沖 02/10 20:40
→ cobrabaton: 廁所。進門見灶見餐桌還穿堂,客廳沒採光,浴室不開 02/10 20:40
→ cobrabaton: 窗,出門門對門,還側邊有樓梯,窗外沒有景還遇尖角 02/10 20:40
→ cobrabaton: 煞大樓沖…看看沒有差的住裡面會怎樣 02/10 20:40
→ bnn: 以前根本沒有尖角煞 那是都市化破碎地加上大樓風直吹頭痛 02/10 21:21
→ bnn: 風水就是一堆"我懶得跟你解釋 通通叫做風水比較快" 02/10 21:22
推 fatb: 其實我覺得一般人避開穿堂煞就可以了啦 02/10 21:23
→ bnn: 既然會隨著時代不同建築不同添加新的煞 那一堆早就過時的概念 02/10 21:23
→ bnn: 那些舊的煞早就根本沒差了 02/10 21:23
→ fatb: 畢竟現代小宅是真的很難顧到這些東西 另外我覺得長輩覺得不 02/10 21:24
→ fatb: 好是很正常的事情 自己覺得可以就好了 02/10 21:24
→ bnn: 什麼出門門對門也是新的 四合院前庭後院曬穀場誰跟你對門 02/10 21:25
→ fatb: 根據我手邊的案例我的認知是真的有差 但你也可以說沒科學根 02/10 21:25
→ bnn: 那麼多公寓樓梯對門 啊不就上班出門對視一下看你家隱私 02/10 21:25
→ fatb: 據只是巧合或個案 反正這種事情也沒有真的統計 02/10 21:26
→ bnn: 然後什麼出門對下行樓梯 那是怕你滾下去 以前平房哪來樓梯滾 02/10 21:26
→ bnn: 能新增那些風水考量 自然就會刪除一堆你新屋沒影響的煞 02/10 21:27
→ bnn: 不然你回去住磚房漏風非得要坐北朝南閃北風曬比較多太陽 02/10 21:28
→ bnn: 現代水泥都比較不漏風了還在守這套 02/10 21:29
推 hermitwang: 腳對落地窗會怎樣?我覺得床直接靠窗戶,窗簾一堆塵 02/10 21:46
→ hermitwang: 蟎有夠髒,才真的不健康勒 02/10 21:46
推 hermitwang: 有錢人是因為有錢才在乎風水,不是因為在乎風水才 02/10 21:49
→ hermitwang: 變有錢。一堆公司也在乎風水啊,還不是業績爛。難 02/10 21:49
→ hermitwang: 不成台積風水好才這麼賺。 02/10 21:49
推 inconspicous: 貴的房子才有好風水,然後有錢人才買得起貴的房子 02/10 22:01
→ bnn: 腳對落地窗是從腳對門洞來的 以前哪來落地窗 連玻璃都沒有 02/10 22:07
→ bnn: 床腳對著開著的門就吃一臉風和灰塵的風水 落地窗才沒這問題 02/10 22:08
→ bnn: 搞不清楚狀況生搬硬套覺得不適合對門就也不適合落地窗 02/10 22:09
→ bnn: 是不是乾脆要超譯成怕玻璃吹破往你床砸下來 那你靠太近都不好 02/10 22:09
→ aoiaoi: 風水這東西 不在意就沒差 長輩不常來 小房自己住的爽就好 02/10 23:03
推 q0933708852: 沒錢煞最可怕 02/11 00:29
推 jl40: 開門見廁 見灶 穿堂 都不建議 風水我也不懂 但能避則避 02/11 01:29
推 lovebridget: 唯一有差的風水只有一樓路衝 真的會被車衝進來撞死 02/11 02:17
→ lovebridget: 其他實際上沒差 02/11 02:18